Warszawa, Mokotów, Sadyba

Dom na wynajem

Opis nieruchomości


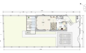
Budynek mieszkalny alternatywnie do wynajęcia na cele biurowe. Powierzchnia całkowita 203 m2, działka 322 m2.
Do dyspozycji Najemcy dwa miejsca postojowe pod wiatą.
Wyposażenie - meble i AGD kuchenne, pralka automatyczna, suszarka elektryczna, szafy wbudowane. 
Wysoki standard wykończenia. Stolarka okienna i drzwiowa drewniana. Podłogi drewniane - deski dębowe lite.

Dom w spokojnej okolicy, dobry dojazd do centrum, blisko szkoła i centrum handlowo -usługowe.
Dom położony na terenie chronionym przez Stołecznego Konserwatora
Zabytków: ,,MIASTO OGRÓD SADYBA”.
Kwota wynajmu 15000 zł plus opłaty licznikowe. Wymagana kaucja w wys. 1 mies. czynszu najmu.
Oferta aktualna od 1 lipca 2026r.

 

Nota prawna

Opis oferty zawarty na stronie internetowej sporządzany jest na podstawie oględzin nieruchomości oraz informacji uzyskanych od właściciela, może podlegać aktualizacji i nie stanowi oferty określonej w art. 66 i następnych K.C.

Szczegóły oferty

Symbol oferty DW-101074
Powierzchnia 203,00 m²
Powierzchnia działki 322 m²
Liczba pokoi 5
Liczba pięter w budynku 2
Typ kaucji jednomiesięczna
Okna nowe drewniane
Instalacje nowe
Balkon duży
Liczba balkonów 1
Liczba tarasów 1
Zagosp. działki zagospodarowana
Ukształtowanie działki płaska
Kształt działki prostokąt
Stan budynku wykończony
Podpiwniczenie tak
Ogrodzenie działki ogrodzona
Gaz tak - miejski
Woda tak - miejska
Dojazd asfaltowa/kostka
Otoczenie działki zabudowane
Ogrzewanie miejskie
Tarasy taras duży
Prąd jest
Kanalizacja tak

Lokalizacja

Podobne oferty

dom na wynajem - Warszawa, Wilanów, rejon Królowej Marysieńki

dom na wynajem

Warszawa, Wilanów, rejon Królowej Marysieńki
6 pokoi 360,00 m2 52,78 zł/m2
dom na wynajem - Warszawa, Praga-Południe, Saska Kępa, Dąbrowiecka

dom na wynajem

Warszawa, Praga-Południe, Saska Kępa, Dąbrowiecka
7 pokoi 240,00 m2 66,25 zł/m2

Napisz do nas

Proszę wypełnić to pole
Proszę wypełnić to pole
Proszę wypełnić to pole
Proszę wypełnić to pole
Trwa wysyłanie...

Ta strona wykorzystuje pliki cookies w celach statystycznych oraz w celu dostosowania naszych serwisów do indywidualnych potrzeb klientów. Zmiany ustawień dotyczących plików cookie można dokonać w dowolnej chwili modyfikując ustawienia przeglądarki. Korzystanie z tej strony bez zmian ustawień dotyczących cookies oznacza, że będą one zapisane w pamięci urządzenia.

rozumiem