Warszawa, Bielany, Chomiczówka, Wólczyńska

Lokal na wynajem

Opis nieruchomości

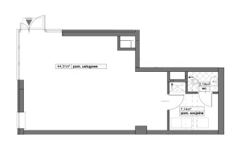
ZGODA NA SPRZEDAŻ ALKOHOLU. ZGODA NA USTAWIENIE OGRÓDKA PRZED LOKALEM. Do wynajęcia lokal usługowy o powierzchni ok. 54 m2. Nieruchomość położona jest przy ruchliwym skrzyżowaniu. Lokal posiada witrynę o długości ok. 7 m. Część witryny jak i wejście do lokalu widoczne są od strony ulicy. Przed lokalem są 2 miejsca postojowe do wyłącznego użytku dla klientów lokalu użytkowego. Na elewacji budynku jest miejsce na reklamę. W lokalu wydzielono zaplecze sanitarne, pozostała powierzchnia to open space z możliwością aranżacji. Lokal został dostosowany do prowadzenia gastronomii - wykonano kanał do odprowadzenia powietrza z kuchni na dach budynku. W najbliższym sąsiedztwie nowe budynki wielorodzinne. Czynsz najmu wynosi 4900zł netto, opłaty dla administracji ok. 300zł miesięcznie dodatkowo zużycie mediów wg liczników. Wymagana kaucja zabezpieczająca.
Lokal dostępny od 01 kwietnia br.

Nota prawna

Opis oferty zawarty na stronie internetowej sporządzany jest na podstawie oględzin nieruchomości oraz informacji uzyskanych od właściciela, może podlegać aktualizacji i nie stanowi oferty określonej w art. 66 i następnych K.C.

Szczegóły oferty

Symbol oferty LW-38159
Powierzchnia 54,00 m²
Piętro parter
Rodzaj budynku blok
Opłaty wg liczników CO, prąd, woda
Liczba pięter w budynku 14
Stan lokalu do wykończenia
Typ kaucji trzymiesięczna
Mies. czynsz admin. 300 PLN
Okna PCV
Rok budowy 2012
Rodzaj lokalu jednopoziomowy
Przeznaczenie lokalu handlowo-usługowy, handlowy, usługowy
Dojazd asfaltowa/kostka
Ogrzewanie miejskie
Możliwość parkowania tak
Witryna wystawowa duża
Wejście od ulicy

Pomieszczenia

Liczba pomieszczeń socjalnych 1
Liczba pomieszczeń sanitarnych 1

Podobne oferty

lokal na wynajem - Warszawa, Ochota, Adama Pługa

lokal na wynajem

Warszawa, Ochota, Adama Pługa
  69,07 m2 79,63 zł/m2
lokal na wynajem - Warszawa, Mokotów, Sadyba, rej. Okrężnej/ Sadyba

lokal na wynajem

Warszawa, Mokotów, Sadyba, rej. Okrężnej/…
4 pokoje 90,00 m2 66,67 zł/m2
lokal na wynajem - Warszawa, Białołęka, Aleksandrów, rej.Ostródzka/ trasa Toruńska

lokal na wynajem

Warszawa, Białołęka, Aleksandrów, rej.Ostródzka/…
  360,00 m2 12,00 zł/m2
lokal na wynajem - Warszawa, Wilanów, Królowej Marysieńki

lokal na wynajem

Warszawa, Wilanów, Królowej Marysieńki
  44,78 m2 86,64 zł/m2

Napisz do nas

Proszę wypełnić to pole
Proszę wypełnić to pole
Proszę wypełnić to pole
Proszę wypełnić to pole
Trwa wysyłanie...

Ta strona wykorzystuje pliki cookies w celach statystycznych oraz w celu dostosowania naszych serwisów do indywidualnych potrzeb klientów. Zmiany ustawień dotyczących plików cookie można dokonać w dowolnej chwili modyfikując ustawienia przeglądarki. Korzystanie z tej strony bez zmian ustawień dotyczących cookies oznacza, że będą one zapisane w pamięci urządzenia.

rozumiem